
ΑΕΡΟΘΕΡΜΗ ΕΝΕΡΓΕΙΑΚΗ ΕΣΤΙΑ
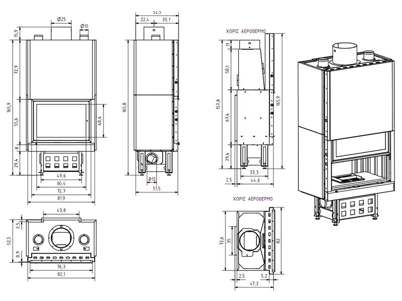
Επίπεδη monoblocκ εστία υψηλής απόδοσης με χυτοσίδηρο θάλαμο καύσης, κατάλληλη για περιορισμένους χώρους, όπου απαιτείται μικρή συνολική εξωτερική διάσταση διατηρώντας την αποδοτικότητα των μεγαλύτερων εστιών.
Διατίθεται σε φυσική ροή ή με αερόθερμο.
Οι εστίες κατασκευάζονται με χρήση άριστων πρώτων υλών. Το τελικό προϊόν εγγυάται υψηλή θερμική απόδοση με χαμηλή κατανάλωση
|
ΤΕΧΝΙΚΑ ΧΑΡΑΚΤΗΡΙΣΤΙΚΑ
|
|
Θερμική ισχύς
|
KW
|
12,2
|
|
Ονομαστική κατανάλωση
|
Kg/h
|
4-6
|
|
Θερμική απόδοση
|
%
|
70
|
|
CO (σε 13% O2)
|
%
|
225,77
|
Βάρος εστίας
(με θερμοθάλαμο & παρελκόμενα χωρίς συσκευασία)
|
kg
|
235
|
|
Διάμετρος εξόδου καυσαερίων
|
cm
|
Ø 250
|
|
Μέσος όρος θερμοκρασίας εξόδου καυσαερίων
|
℃
|
290
|
|
Καύσιμο
|
|
Ξύλο -Ξυλώδη Βιομάζα
|
|
Συνεχής λειτουργία
|
h
|
8
|
|
Εξωτερικές διαστάσεις
|
cm
|
82 X 52 X 181
|
|
Διαστάσεις ανοίγματος προσαγωγής αέρα καύσης
|
mm
|
Ø 150 ή (85 m3)
|
|
Παροχή αέρα αερόθερμου
|
mm
|
Είσοδος 2Χ Ø 120
Έξοδος 2Χ Ø 100 (300 m3/h)
|
|
Αριθμός έκθεσης δοκιμής
|
|
CE-Δ07-03
|
|
Εγκεκριμένο βάση προτύπου
|
|
EN 13229
|