
ΑΕΡΟΘΕΡΜΗ ΕΝΕΡΓΕΙΑΚΗ ΕΣΤΙΑ
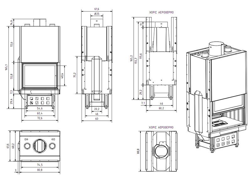
Επίπεδη monobloc διαμπερές εστία με 2 συρόμενες και ανοιγόμενες πόρτες με πολύ μεγάλο εμβαδόν του χώρου καύσης και μεγάλη απόδοση. Κατάλληλη για τον διαχωρισμό 2 ξεχωριστών χώρων ή για εγκατάσταση σε κεντρικό σημείο του σπιτιού όπου η προβολή της φωτιάς από παντού είναι το ζητούμενο.
Διατίθεται σε φυσική ροή ή με αερόθερμο.
|
ΤΕΧΝΙΚΑ ΧΑΡΑΚΤΗΡΙΣΤΙΚΑ
|
|
Θερμική ισχύς
|
KW
|
16
|
|
Ονομαστική κατανάλωση
|
Kg/h
|
4-6
|
|
Θερμική απόδοση
|
%
|
75
|
|
CO (σε 13% O2)
|
%
|
233,08
|
Βάρος εστίας
(με θερμοθάλαμο & παρελκόμενα χωρίς συσκευασία)
|
kg
|
291
|
|
Διάμετρος εξόδου καυσαερίων
|
cm
|
Ø 250
|
|
Μέσος όρος θερμοκρασίας εξόδου καυσαερίων
|
℃
|
290
|
|
Καύσιμο
|
|
Ξύλο -Ξυλώδη Βιομάζα
|
|
Συνεχής λειτουργία
|
h
|
8
|
|
Εξωτερικές διαστάσεις
|
cm
|
81 X 60 X 180
|
|
Διαστάσεις ανοίγματος προσαγωγής αέρα καύσης
|
mm
|
Ø 150 ή (85 m3)
|
|
Παροχή αέρα αερόθερμου
|
mm
|
Είσοδος 2Χ Ø 120
Έξοδος 2Χ Ø 100 (300 m3/h)
|
|
Αριθμός έκθεσης δοκιμής
|
|
CE-Δ07-16
|
|
Εγκεκριμένο βάση προτύπου
|
|
EN 13229
|