
Εστία με ξύλα, ατσάλινη κατασκευή και εσωτερική επένδυση πυρίμαχο.
Έχει υψηλές αποδόσεις, χαμηλές εκπομπές στην ατμόσφαιρα, ελάχιστες καταναλώσεις ξύλου και τζάμι πάντα καθαρό.
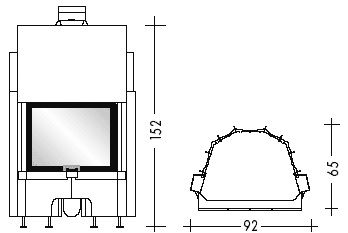
Μοντέλο με συρώμενη πορτα κα τζάμι επίπεδο.
ΤΕΧΝΙΚA ΧΑΡΑΚΤΗΡΙΣΤΙΚA
|
| πλάτος |
cm |
92 |
| βάθος |
cm |
65 |
| ύψος |
cm |
152 |
| ωφέλιμη θερμική ισχύς |
kW |
10 |
| συνολική απόδοση |
% |
78 |
| κατανάλωση καυσίμου (ξύλα) |
kg/h |
3 |
| συνολικό βάρος |
kg |
205 |
| Ø έξοδος καπνού (θυληκό) |
cm |
20 |
| Ø παροχή αέρα |
cm |
12 |
| ύψος ελάχιστο ύψος καμινάδας |
m |
- |
| θερμαινόμενος όγκος (μόνωση σύμφωνα με το νόμο 10/91) |
m³ |
240 |
|